Lease of Two Commercial Units – 360 m² in AGORA FLORA, Vinohrady, Prague 3

Shops —
360 m2
Praha 3, Vinohrady

We offer for lease attractive commercial units located in the multifunctional AGORA FLORA complex, situated in the prestigious Královské Vinohrady district, just a few steps from the Flora metro station. The spaces are accessible via a pedestrian passage connecting Chrudimská and Hradecká streets.

AGORA FLORA was developed through the revitalization of a former electrotechnical factory and now offers modern residential units, office spaces, retail outlets, services, and underground parking. The location benefits from excellent public transport connections – metro, tram, and bus stops are approximately 100 meters away.

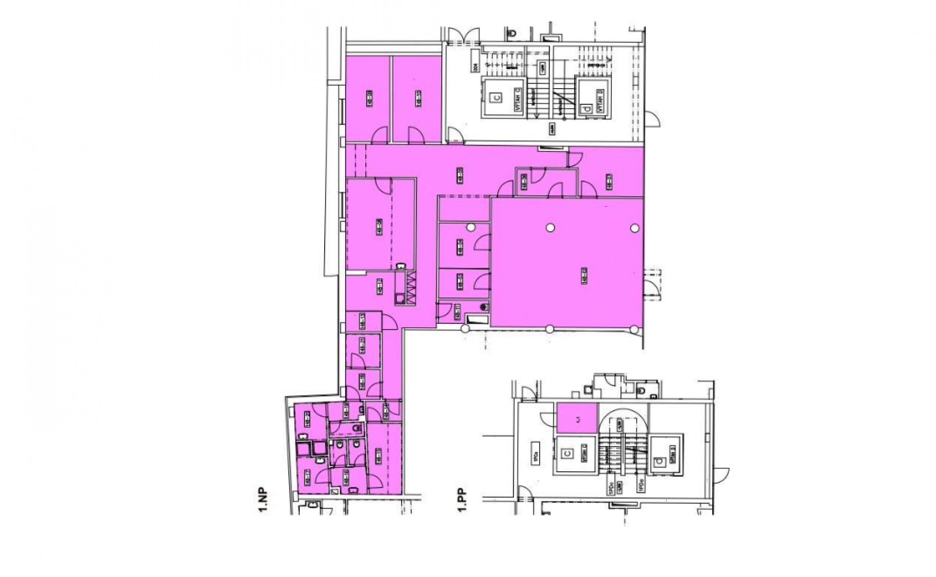
Available units:

  • 2nd floor, 360 m² – approved as a “leisure center,” ideal for wellness services, massage or movement studio, or can be adapted for office or medical use

Conditions

  • Rent: from CZK 350/m²/month (excluding VAT)
  • Service charges and utilities advance: CZK 145/m²/month (including VAT)
  • Availability: upon agreement with the current tenant
  • Prices do not include VAT
  • Minimum lease period 3 years

Amenities

Clear ceiling height: 2.9 m / Private sanitary facilities / Electrical power supply, hot and cold water / Central heating / Air ventilation system / Access to common areas via chip system / Option to take over existing HOT YOGA studio equipment / Elevator / Possibility of layout modifications upon agreement / Option to lease parking space in underground garage / EPS (electronic fire protection system), CCTV / 24/7 security / Underground parking garage